© Andreas Behling
New board for the Labbus Mill Association

The newly elected board of directors on March 9, 2024. From left to right: Ute Finze, Treasurer; Bernd Finze, 2nd Chairman; Aileen Hansing, 1st Müller; Nina Kühling, Secretary; Marcel Brandes, 1st Chairman
At its general meeting on March 9, 2024, the Labbus Mill Association unanimously elected a new board - with a mix of new and familiar faces. Marcel Brandes, the previous treasurer, was elected as 1st chairman. "I married my wife Laura in the mill five years ago," explains Brandes, "and was simply enthusiastic about the history and technology of this cultural monument." Within a few years, a simple membership became a board position "and now I am chairman," he smiles, "that's how quickly it can happen."
Brandes emphasises that the work on the board is characterised by equality. "There is no boss here who has the sole say," he emphasises. "We all work very closely together, make decisions together and are all equally enthusiastic about the mill and our plan to make it accessible to the public as a living cultural heritage"...
Continue reading
This also applies to the newly elected board members Bernd and Ute Finze. The Neu-Sulingers moved here four years ago and discovered the windmill in Labbus, built in 1851, on Mill Day 2022. "We took a detailed tour back then and thought the project was so great that we joined the association right there and then," remembers Ute Finze.
Review: Mill Festival in Labbus, Whit Monday 2023
For the first time under rotating wings
A few weeks after the 2023 Mill Festival, we look back on the day with complete satisfaction. We had advertised the day in advance as "the first mill day at the Labbus windmill under rotating wings", knowing full well that the wind is known to blow where it wants. On Whit Monday, it actually blew where we wanted it to, in such a way that the visitors to our festival grounds could enjoy, celebrate, shop and play all day in bright sunshine and inviting temperatures directly under the rotating wing cross.
The mood among the visitors was happy and relaxed and our many helpers, whether at the cake buffet, in the kitchen, at the beer tap, at the goulash cannon, at the children's entertainment or in the mill, carried out their voluntary tasks with team spirit and good humor. DJ Jensi provided a musical backdrop that everyone enjoyed.
The organized chaos of the set-up hours had turned into a very inviting festive event just in time for the start of the service at 11 a.m. After that, the rush to the cake buffet began, which the crew bravely withstood, but unfortunately the coffee machines did not. Over 60 cakes were served by the hard-working kitchen helpers and the cake buffet was completely sold out. The other catering stands were also taken over by the guests. The pea soup from the goulash cannon was already sold out by 1 p.m.
Overall, this day was so beautiful that it is hard to find words to describe it. Everything was perfect. The gospel choir, which was ...
The first open day of the mill, 22.1.2023
Our first open day at the mill was a complete success. We are very pleased with the visitors, both known and unknown, who found their way to us despite the unpleasant weather. Among them was a couple who got married in the mill twelve years ago and were very happy about the transformation of the mill, as well as two young visitors, Paul (6 years) and Lilli (8 years), who were both able to get involved.
We were particularly pleased to receive a visit from 86-year-old Fritz Drecktrah, who started as a miller's apprentice here at "Henkes Mühle" in 1951. He was able to tell us a lot about the technical equipment of the mill at the time and about his work there, and we were able to show him where he had immortalized himself in the mill in 1951. Finally, he proved on the brake chain that he had not forgotten the correct handling even after 70 years.
Unfortunately, the wind was only enough to keep the mill idling, but it is always a joy to be able to show visitors a rotating, living mill.
The next open mill day will take place on February 26th - always on the last Sunday of the month.
11.9.2022 Open Monument Day
History and technology, restoration and future prospects

The windmill in Labbus took part in the Open Monument Day again on Sunday, September 11, 2022. Almost 100 visitors came to see the mill. The mill is open and the members of the mill association are looking forward to presenting and explaining the results of the completed construction phase II (restoration of the wings and new construction of the gallery). When the wind conditions are favorable, the 20-meter-long blade cross rotates.
The recently completed restoration project took four years and was funded by the German Foundation for Monument Protection, organizer of the Germany-wide Open Monument Day, as well as by funds from the European Union (EAFRD “Cultural Heritage” measure), the Bingo Environmental Foundation, the city of Sulingen and the Labbus Mill Association.
There were guided tours in German, English and sign language.
Donations and proceeds from the Open Monument Day will continue to go towards the preservation of the listed Labbus Mill, built in 1851.
14.12.2021 From the district newspaper: Gallery construction from January

Waiting for the oak logs for the Labbus windmill
Sulingen – The Labbus windmill in the Sulingen town of Lindern is technically considered a gallery windmill – even if little of this has been seen for almost 15 years. The Labbus mill association has been working for some time to change this in the foreseeable future – and now a time is in sight when the gallery and wings will once again adorn the mill.
In 2006, the gallery had to be removed because it had become dilapidated, and since the end of 2012 the wings have also been missing. The association divided the restoration of the building into several phases with the aim of having a functioning mill again, the first of which was completed last year with the restoration of the mill cap. Since then, the focus has been on Phase II, which involves restoring a gallery and restoring the wings. The association can cover the costs of more than 120,000 euros thanks to various supporters: In the middle of the year it was announced that the Bingo Environmental Foundation of Lower Saxony was supporting the project with 20,000 euros (we reported). The German Foundation for Monument Protection contributed 48,891.15 euros, the association received 30,000 euros from the city of Sulingen and the State Office for Monument Protection provided EU funding from the Directive on the granting of subsidies for integrated rural development (ZILE) in the amount of 14,673.69 euros. The association covered the remaining amount from its own resources.
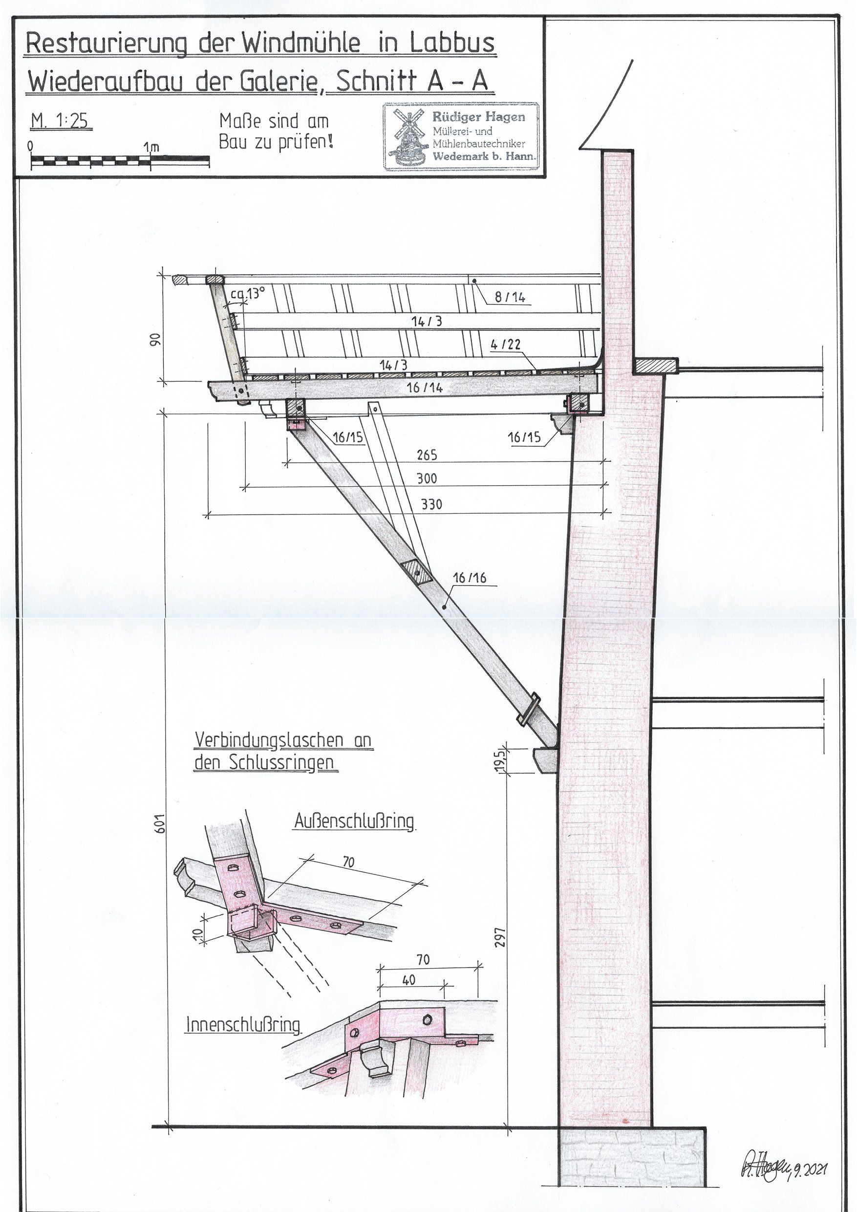
September 2021 Construction drawings of the new gallery
Our technical advisor, mill builder and mill expert Rüdiger Hagen, has completed the drawings for our new gallery. The dimensions and design elements correspond to the mill's last operating condition. The drawings are handmade and, in our opinion, have just as much artistic as technical value. They will find a place of honor in the mill.
Open Monument Day 2021
This year's Open Monument Day was "small but nice". We had very interested visitors and plenty of time to offer detailed mill tours and have in-depth discussions.
After two years with almost no visitors, we were pleased to show the results of our restoration work and to concretize the plans for the completion of construction phase II: a rotating mill by mid-2022 at the latest!
The local newspaper summed it up nicely (again):
From the press: Molina. Mills and people, June 2021
We are very pleased about a recently published article in the "Molina. Mills and people." In this annual trade magazine, the two mill experts Philipp Oppermann and Torsten Rüdinger, together with experts and mill associations, present mills and their operators, exchange experiences and give tips for the maintenance and operation of mills - whether as a traditional production facility, technical monument, historical building for culture or housing or as a tourist attraction.
We see the publication of our project in this journal as a great recognition of our efforts to restore the Labbus windmill as a living technical monument.
From the press: Der Mühlstein, May 2021
The Labbus windmill is currently featured more frequently in the press. Here is a detailed article from the millstone, the trade magazine of the Mill Association of Lower Saxony-Bremen eV about the history of the mill, the restoration and future prospects.
You can download the entire article here.
19.05.2021 Construction phase II begins
The financing for construction phase II - the renovation of the wings and the reconstruction of the gallery - is in place and we are now in the concrete planning phase. The planned construction cost is €100,000. With a bit of luck, the mill will be able to grind with wind again in 2021 for its 170th birthday.
The German Mill Day 2021 will be postponed to September 12th - at the same time as the Open Monument Day. We very much hope that we will be able to offer a program again this year in some form.
You can find out more in this article from the Sulingen district newspaper dated May 19, 2021.
03.01.2021 Commissioning of the new runner stone
Yesterday was an absolutely successful start to the new mill year in Labbus. We installed the new millstone, which weighs around 1.5 tonnes, without any problems, balanced it with just 1kg of lead and ground around 450kg of wheat.
After the stone was delivered before Christmas, we first erected it on the stone floor, rolled it to the right place, hung it in the crane, marked it out and aligned the bearings for the balancing pick to within less than 1mm and then cast it in plaster.
As always, every tool we needed was already in the mill. Even the compass, which is adjusted to our 145cm diameter stone, was already part of the inventory.
The first test grindings show that the grinder can grind coarsely evenly as well as finely and very satisfactorily and it can be assumed that these properties will improve even further once the new stone has been ground in.
The local newspaper reports (click on the picture for the link):
28.12.2020 Newsletter December 2020
After a very eventful year for the Labbus windmill, we are pleased to present the first newsletter of the Labbus Mill Association with many photos and information about the activities of the past year as well as the plans for what is expected to be a very exciting 2021.
13.11.2020 Our new runner stone is in production
Our new runner stone is in production this week. The millstone maker Hans Titulaer from the Netherlands has now sent us the first photos.
The first picture shows the underside of the stone's grinding bars; these were first cast from a quartz/emery mixture and the specified pattern ("the sharpness") was laid out in the mold. The gaps are then filled with a softer mixture. These form the air grooves in the finished stone, which are used to transport the ground material outwards. The stone is then filled up to the upper edge of the mold with a mass that provides weight. The stone is 40 cm deep and has a diameter of 145 cm.
The underside of the stone must then be worked on to give the air grooves the correct, bevelled profile. Lead weights will later be placed in the round boxes on the top of the stone to balance the stone.
WWe are very excited about the grinding characteristics of this new runner, which is expected to arrive here towards the end of the month. We will keep you updated!
29.09.2020 Book donations to the Mühlenverein Labbus eV
Our small library of mill history and mill science has been supplemented by a very generous donation from Klaus Schlüter from Laatzen. Klaus has been interested in technology for a long time and has collected these books over the decades. Now the mill association can benefit from this accumulated milling knowledge!
If you are interested in seeing the books or receiving more information about individual books, please feel free to contact us.
Another gem from our collection: The book "Architectura Mechanica - Moole Boek" was originally published in the Netherlands in 1686. Our edition bears a dedication from 1759. The book has 32 exquisite drawings of different Dutch mills - here is a small selection of them. The book was a gift from our friends and club members Robin and Julia - we really appreciate it!
11.09.2020 Open Monument Day next Sunday - this time digital!
08.09.2020 The new runner stone has been ordered!
After the financing of the new runner stone has been secured 100% through donations, we have today sent the order to a renowned millstone maker in the Netherlands. There are many factors to consider when it comes to a millstone - diameter, height, direction of rotation, material, sharpness (the "pattern" on the inside of the stone that determines the grinding properties) and much more.
In the picture you can see how we "traced" the sharpness of the old stone with a wax crayon so that the stonemason can determine the angle or "draft" of the air furrows in each field.
We would like to thank our sponsors and look forward to grinding with our new stone!
25.08.2020 The Labbus mill in the film project "Millland Lower Saxony"
A brief insight into the history and technology of our mill from the film project Mühlenland Niedersachsen by our miller colleagues Florian Butt and Ansgar Rahmacher. Most of the footage was shot a few years ago - in the meantime, a lot has changed, especially inside our mill!
The entire film project, with over 7 hours of film material from over 180 mills in Lower Saxony, as well as explanations and 3D animations on mill history, technology and production methods, is highly recommended! Further details at https://www.muehlenromantik.eu/index.php/filmprojekt
02.06.2020 Future operating concept for the Labbus windmill presented
Mill Day 2020 - unfortunately fallen victim to the coronavirus
25.05.2020 New residential area around the mill? We are worried!
08.05.2020 First grain delivery to the mill in 30 years
22.04.2020 Construction phase 1 is completed
13.04.2020 Re-intermeshing of the spur gear
18.3.2020 The wind rose comes to its place
03.02.2020 - 06.02.2020 The cap is here!
24.01.2020 Voluntary miller training - visit to the mill
18.01.2020 Renewal of the Bütt
07.01.2020 From the district newspaper
Go to Article
History and technology
23.12.2019 Living Advent Calendar at the Labbus Windmill
10.11.2019 Cap restoration is progressing well
08.09.2019 Open Monument Day
10.06.2019 Mill Festival, Whit Monday 2019
From the district newspaper, 11.06.2019:
Many are drawn to the gallery-Holländer
20.12.2018 €30,000 from the city of Sulingen for construction phase 2
11.11.2018 Mill restoration: financing for the first construction phase is in place!
- €50,000 in funding from the German Foundation for Monument Protection
- €30,000 from EU funds – specifically from the ZILE programme (Guideline on the granting of aid for integrated rural development) for the area of cultural heritage
- €20,000 from the association's own funds. These in turn come from a combination of membership fees, donations and the proceeds from the annual Mill Day
































































