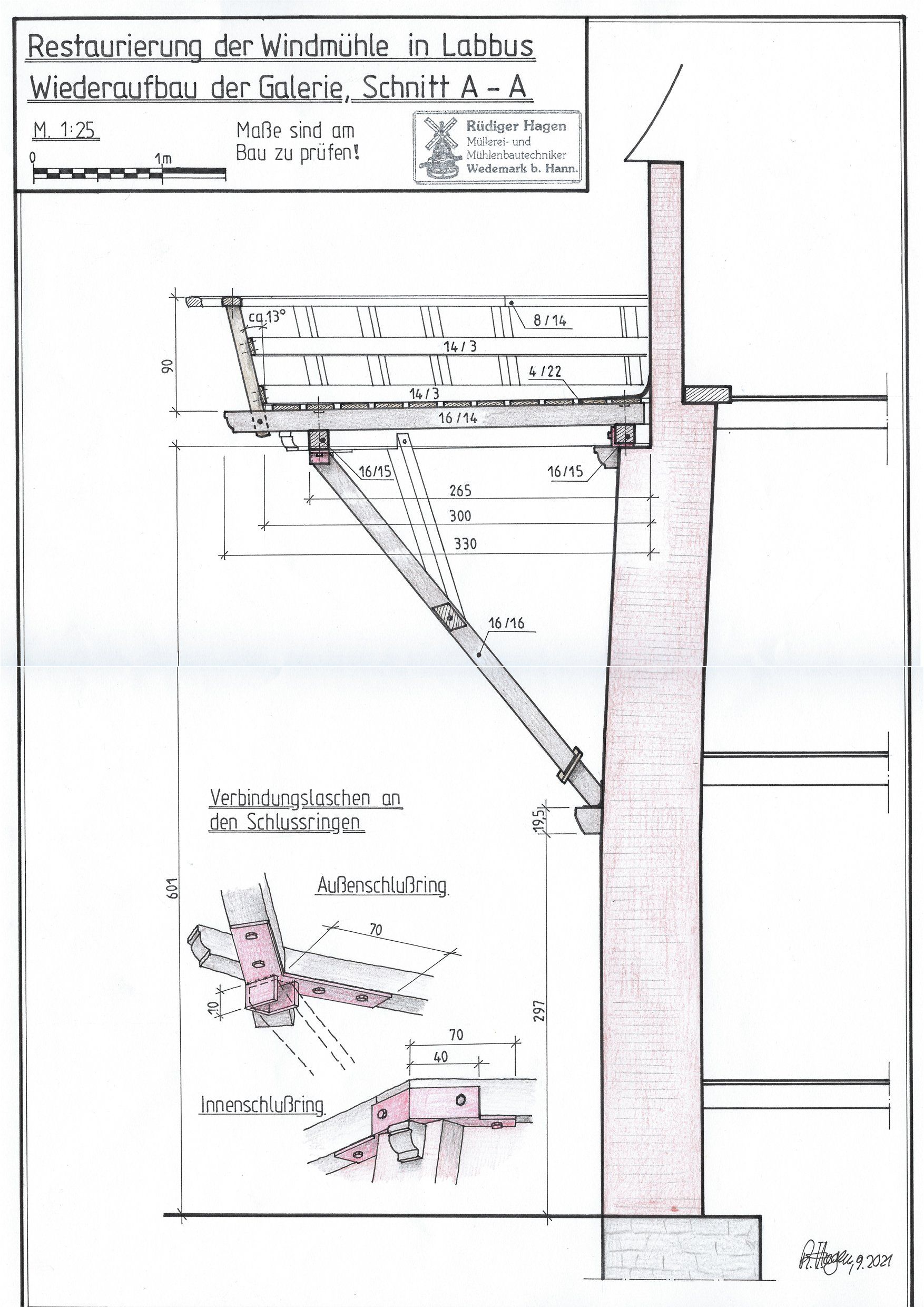
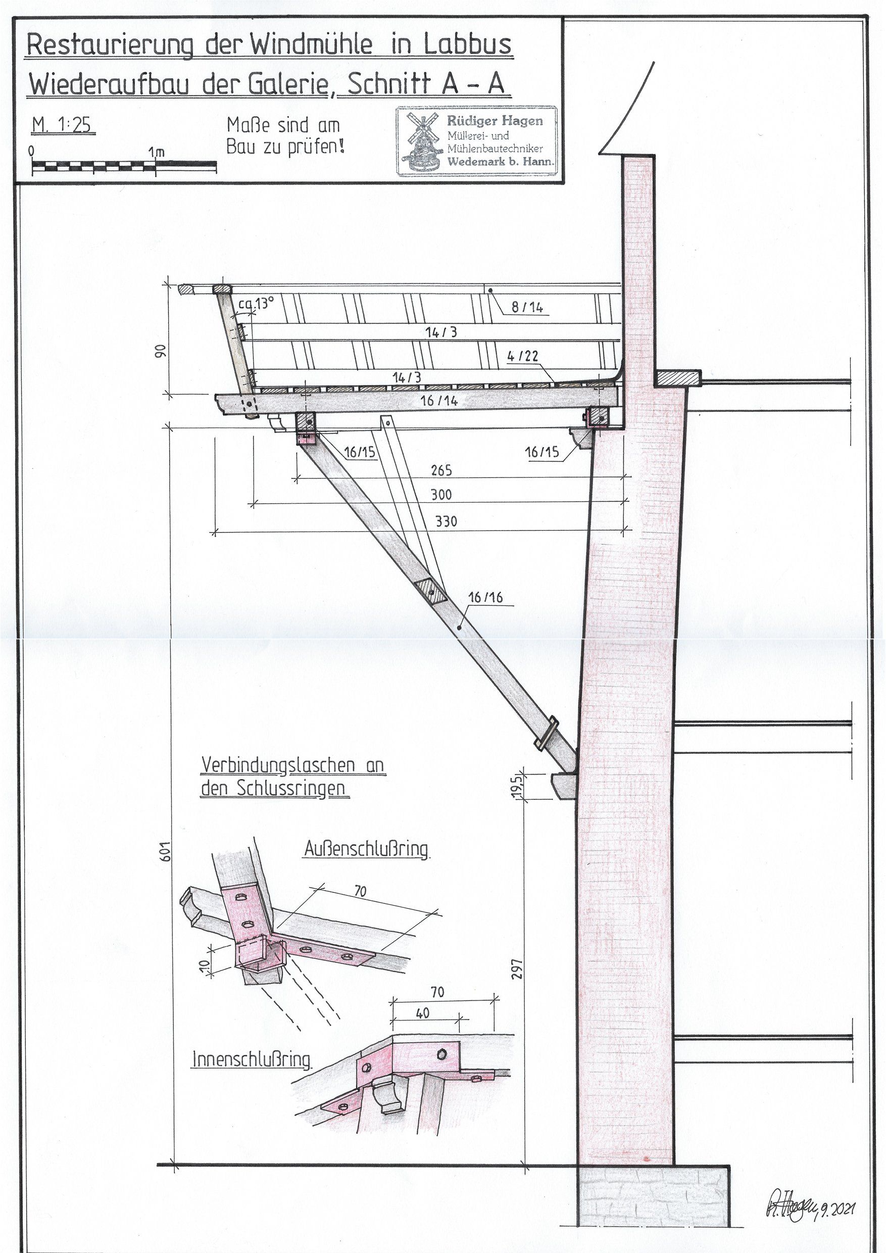
Die Galerie, die der Mühle ihre Bezeichnung "Galerieholländer" verleiht, musste 2006 wegen Baufälligkeit abgenommen werden. Es handelte sich bis zuletzt um eine reine Holzkonstruktion, welche im Laufe der Jahrzehnte lediglich im Bereich des Geländers Veränderungen erfahren hat.
Die Galerie dient der Bedienung der Brems- und Jalousieklappentechnik der Mühlenflügel. Ohne Galerie kann sich die Mühle daher nicht drehen.
Diese zweite Bauphase war mit Kosten in Höhe von €125,000 verbunden und wurde durch Fördermittel von der Deutschen Stiftung Denkmalschutz, der EU (ZILE), der Stadt Sulingen und der Niedersächsischen Bingo-Umweltstiftung möglich gemacht.







